Gå til: Plantegninger | Fasade | Kontaktskjema
211 – BRAGA
LYS OG UTSIKT
Velkommen til moderne og rene Braga, med et minimalistisk preg, store vindusflater, og mye naturlig lys og utsikt.
I denne moderne og familievennlige boligen finner du alt du trenger. Boligen rommer hele fire soverom, to bad, en praktisk sportsbod/vaskerom med egen utgangsdør, og en åpen og sosial stue- og kjøkkensone.
Hovedsoverommet i andre etasje er en egen avdeling i huset. Her har du egen stue, store vindusflater og mye lys og utsikt. Vi viser bare én løsning – her er det mange måter å gjøre det på. Hvordan ser din Braga ut?
TEKNISK DATA

Innenfor arealgrensen til Husbanken
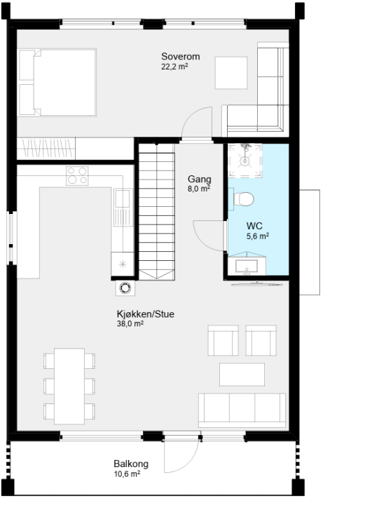
PLANTEGNINGER
ØNSKER DU MER INFORMASJON?
FYLL UT SKJEMAET, SÅ KONTAKTER VI DEG FOR EN HYGGELIG BOLIGPRAT
ARKITEKT
ALT KAN TILPASSES FOR Å IMØTEKOMME DERES ØNSKER OG BEHOV
Fordelene med å bygge et helt nytt hus, er at du kan få det akkurat slik som du vil. Trolig finner du en husmodell i vår katalog som kan passe, men kanskje ønsker du å tilpasse boligen etter egne ønsker og behov.
Vi vil gjøre vårt ytterste for at du skal bli fornøyd, og hjelper deg hele veien fra idé til ferdig bolig. Vi har fagkunnskap og gir gode råd for at du skal få bygget en bolig som passer deg helt perfekt.»







